• Byggmann

211 – SLOGEN

Særpreget hytte med «oppstugu». Overbygget inngangsparti, balkong på loft som gir overbygget uteplass. Store soverom, romslig kjøkken og stueløsning. Utvendig bod med egen inngang gjør denne hytten til det perfekte fritidshjem.

Med forbehold om at det kan være nødvendig med justeringer, det er en eldre hytte som vi ikke kan garantere oppfyller dagens tekniske krav.

TEKNISK DATA

Største lengde: 13,9 m
Største bredde: 9,4 m
Bruksareal: 92,8 m²
Bebygd areal: 103,7 m²

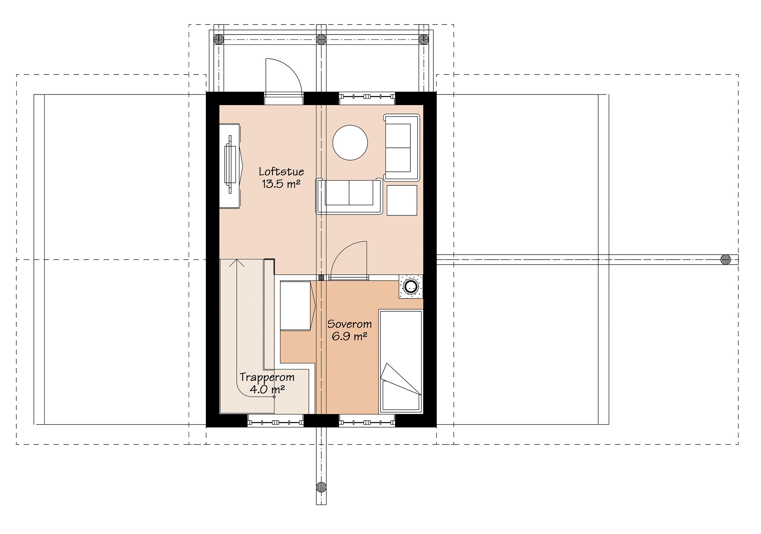
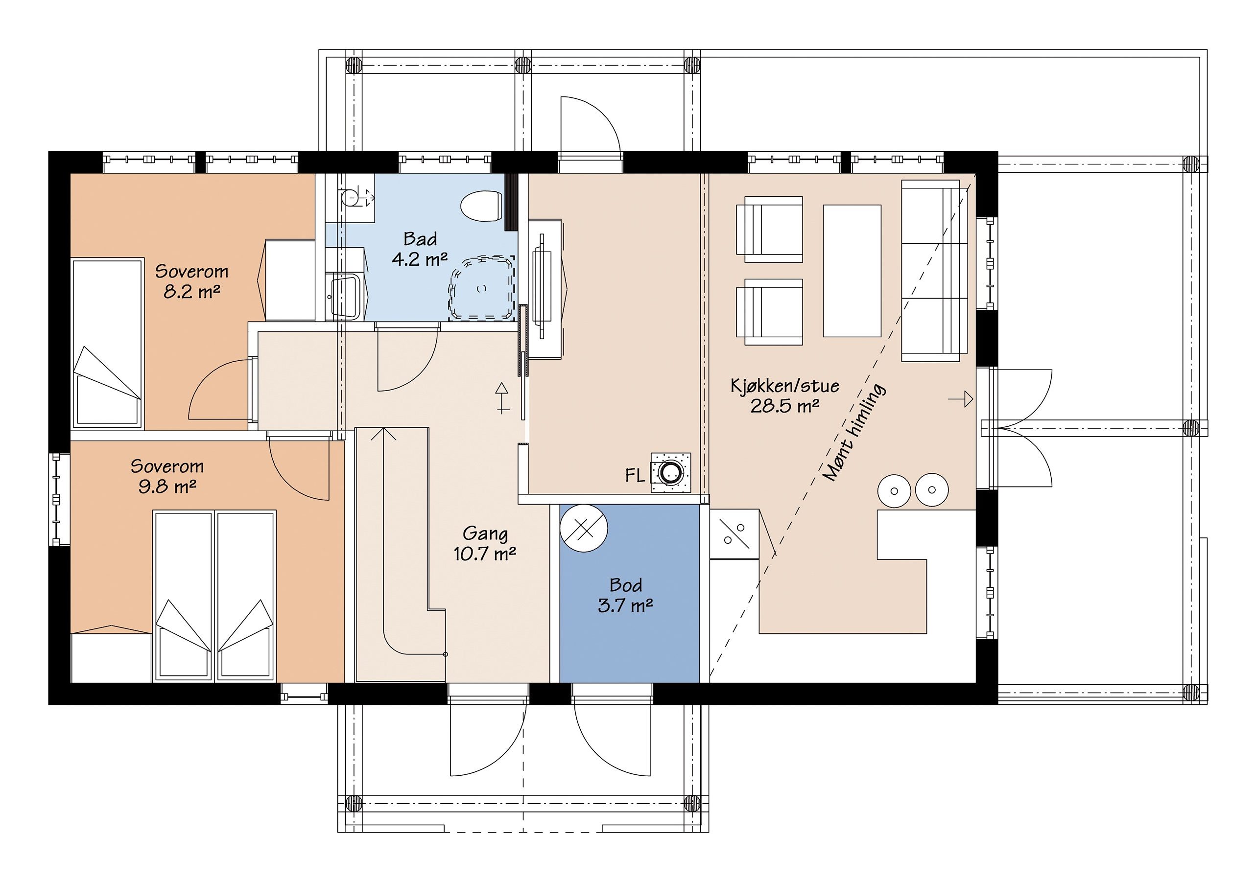
PLANTEGNINGER

1. ETASJE

2. ETASJE

FASADE

ØNSKER DU MER INFORMASJON?

FYLL UT SKJEMAET, SÅ KONTAKTER VI DEG FOR EN HYGGELIG BOLIGPRAT

    ARKITEKT

    ALT KAN TILPASSES FOR Å IMØTEKOMME DERES ØNSKER OG BEHOV

    Fordelene med å bygge et helt nytt hus, er at du kan få det akkurat slik som du vil. Trolig finner du en husmodell i vår katalog som kan passe, men kanskje ønsker du å tilpasse boligen etter egne ønsker og behov.

    Vi vil gjøre vårt ytterste for at du skal bi fornøyd, og hjelper deg hele veien fra idé til ferdig bolig. Vi har fagkunnskap og gir gode råd for at du skal få bygget en bolig som passer deg helt perfekt.

    Trykk her for lese mer om arkitekttjenester fra Byggmann.