Gå til: Plantegninger | Fasade | Kontaktskjema
226 – SOTRA
FUNKIS MED UTLEIEDEL
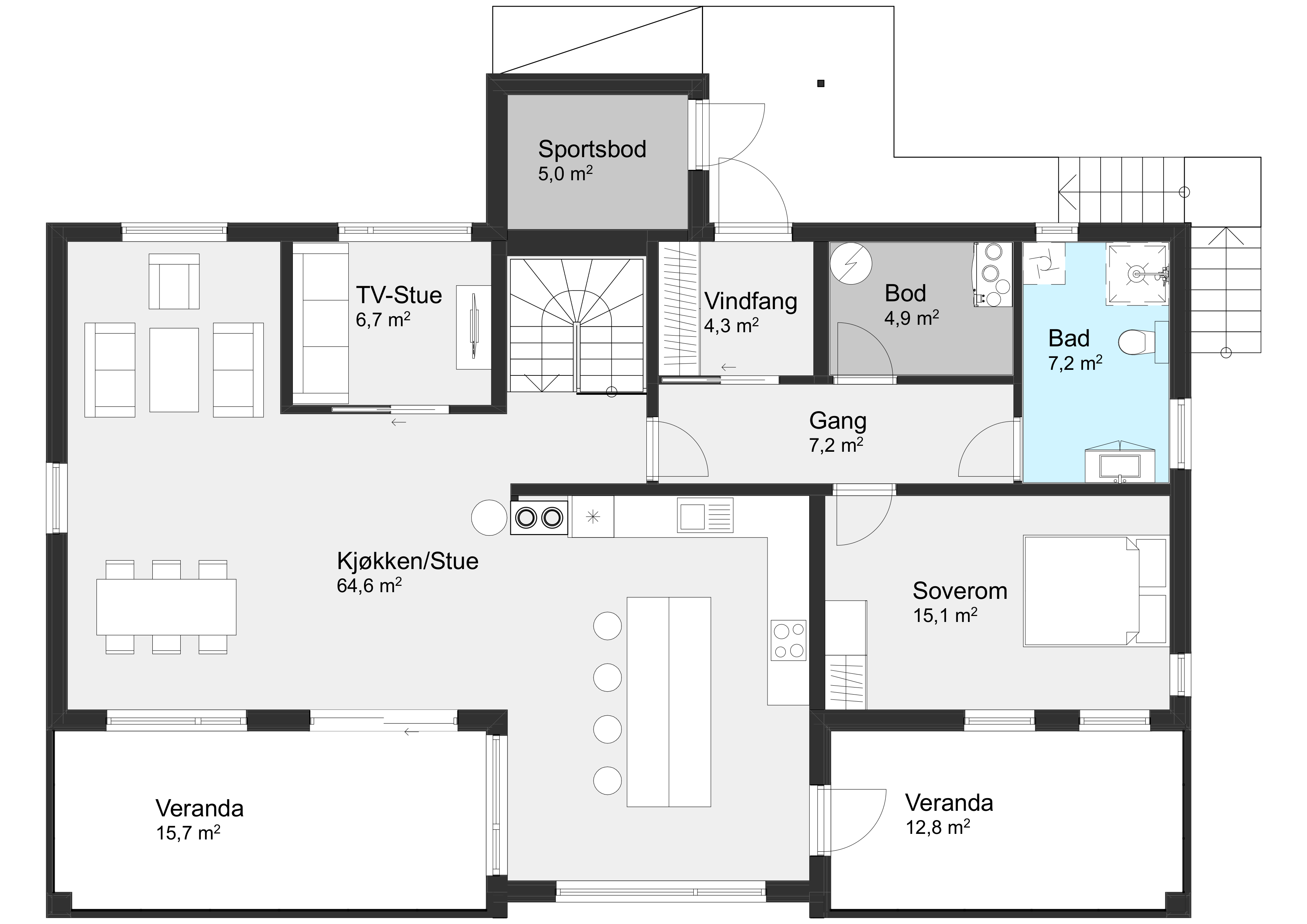
Sotra er en moderne bolig som kombinerer stil og funksjonalitet. Perfekt for skrå tomter, tilbyr den en fullverdig utleiedel med stue/kjøkken, soverom, bad og sportsbod – ideelt for ekstra inntekt eller til ungdom i etableringsfasen.
Hovedetasjen byr på et åpent stue- og kjøkkenområde med store vinduer, to verandaer, TV-stue og soverom.
Den fleksible planløsningen gjør Sotra til en investering i livskvalitet, tilpasset både familier og inntektsmuligheter. Moderne design møter praktisk komfort i Sotra.
TEKNISK DATA
Energim. utleiedel: Oransje – B
ØNSKER DU MER INFORMASJON?
FYLL UT SKJEMAET, SÅ KONTAKTER VI DEG FOR EN HYGGELIG BOLIGPRAT
ARKITEKT
ALT KAN TILPASSES FOR Å IMØTEKOMME DERES ØNSKER OG BEHOV
Fordelene med å bygge et helt nytt hus, er at du kan få det akkurat slik som du vil. Trolig finner du en husmodell i vår katalog som kan passe, men kanskje ønsker du å tilpasse boligen etter egne ønsker og behov.
Vi vil gjøre vårt ytterste for at du skal bi fornøyd, og hjelper deg hele veien fra idé til ferdig bolig. Vi har fagkunnskap og gir gode råd for at du skal få bygget en bolig som passer deg helt perfekt.
 
					






