Gå til: Plantegninger | Fasade | Kontaktskjema
233 – LINDÅS
EN DRØM I TRE ETASJER
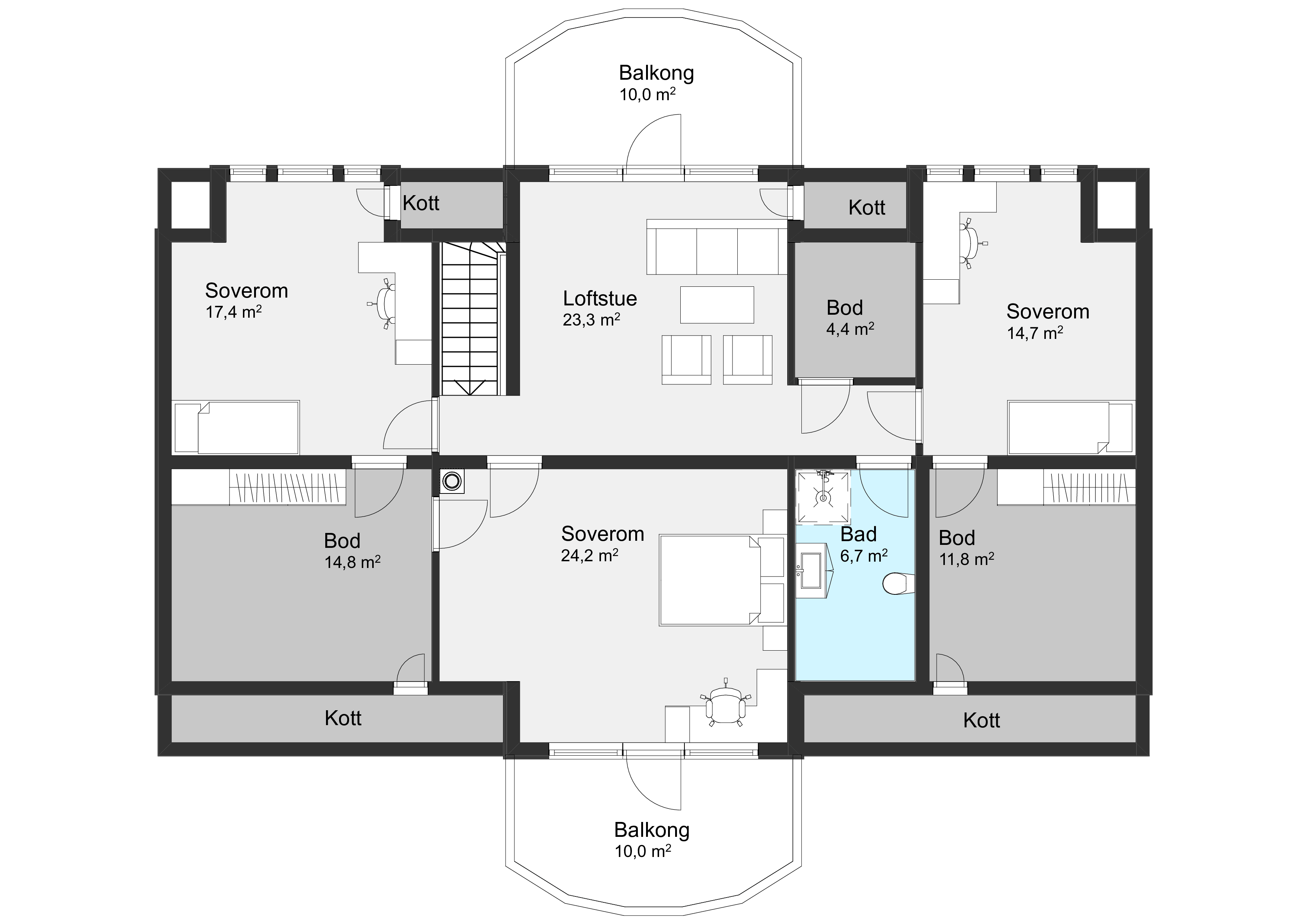
Lindås er en bolig for storfamilien – og litt til. Med over 565 m² fordelt på tre etasjer, er det rom for alt fra hobbyer og trening, til gjester og hverdagens små og store behov.
Boligen har seks soverom, seks bad, trimrom, stort kontor, tre stuer, en romslig kjøkkenløsning og uteområder som kan nytes uansett hvilken etasje du befinner deg i. Walk-in garderober og praktisk vaskerom sørger for orden i det daglige.
Lindås er den komplette familiedrømmen – for deg som ønsker en bolig med alt.
TEKNISK DATA
ØNSKER DU MER INFORMASJON?
FYLL UT SKJEMAET, SÅ KONTAKTER VI DEG FOR EN HYGGELIG BOLIGPRAT
ARKITEKT
ALT KAN TILPASSES FOR Å IMØTEKOMME DERES ØNSKER OG BEHOV
Fordelene med å bygge et helt nytt hus, er at du kan få det akkurat slik som du vil. Trolig finner du en husmodell i vår katalog som kan passe, men kanskje ønsker du å tilpasse boligen etter egne ønsker og behov.
Vi vil gjøre vårt ytterste for at du skal bi fornøyd, og hjelper deg hele veien fra idé til ferdig bolig. Vi har fagkunnskap og gir gode råd for at du skal få bygget en bolig som passer deg helt perfekt.
 
					







